Prior to reforming your Spanish property.

Thinking about reforming your Spanish property, or changing the distribution and not sure where to start. Phil has a vast knowledge of construction, structures which are load bearing and not, purchasing of materials at the best prices, and trades men to carry out the work quickly and to a high quality finish.

Phil can come to your property, discuss with you what you would like to have done, if any distribution changes are wanted, he can look at the property, and tell you if its physically possible, due to the structure of the property or not.
If you tell him while he is there your wish list for the amount of rooms you want etc, he may come up with a distribution idea, that maybe better than what you were thinking to do, as he does this a lot for clients, as well for his and his wifes properties.

Once you have decided what changes you would like to make to the distribution, all be it, your design, or one that Phil has suggested, if wanted Phil can draw floor plans of before, how the distribution is now, and how the new distribution will look, this will also aid the builder when building the new walls etc.

The cost for a 2 hour visit, to speak with you regarding your wish list, and have a good look at the property to see if what you want done is possible, and any ideas he has regarding possibly a better distribution is €50.00.
The cost for before and after floor plans, Phil will be able to tell you when he visits the property, as the costs will depend on the type of property, the size, and the amount of floors.

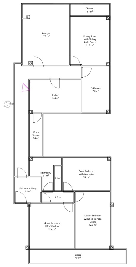
To see a property, that Phil designed for his wife and himself to live in, please see below, the floor plans of before and after, and also a video of when it was finished. You will note when watching the video, during construction, Phil decided to modify the layout of the bathrooms a little.
Before:New layout:

Links to all the services we offer

Please check out the other services that we think may be helpful to you, and other information regarding properties in Spain that we think may be useful. Simply click on one of the links below to see the information regarding each category and services available.

All services related to Spanish real estate we offer.

Purchasing a Spanish property, including start to finish guide and information.

Selling a Spanish property.

CEE Energy rating certificate.

Second habitation license.

Reconnections of water and electricity (Bank sourced properties).

Property security with an alarm.

Prior to reforming your Spanish property.

Property building licenses.

Project management for building.

Builders.

Property management in general.

Legalize the square meters of your property.

Please note: If you require another service regarding Spanish property, that is not listed, please send us a message with a valid email address and telephone number, and we will contact you, you can access our contact us page, using this link. Go to our contact us page.